Kapitalanlage mit Kick: 5 Einheiten, 5,17 % Rendite – steueroptimiert bis 6,2 % dank AfA!
RPG Birich Immobilien
Objektbilder
Zum Vergrößern auf das Bild klicken
Objektstandort
86381 Krumbach
Anbieter
RPG Birich Immobilien
Benediktusstraße 14
88416 Ochsenhausen
Kontakt
| Tel |
004973529415755 Direkt anrufen |
| Durchwahl |
004973529415755 Direkt anrufen |
| Homepage | Link zur Homepage |
Unser Immobilien-Angebot
Attraktive Kapitalanlage: Modernes, vollvermietetes Mehrfamilienhaus mit 5 Einheiten in neuwertigem Zustand
Dieses hochwertige Mehrfamilienhaus wurde im Jahr 2023 fertiggestellt und umfasst fünf moderne Wohneinheiten mit einer gesamten monatlichen Kaltmieteinnahme von 5.600 €. Das Objekt befindet sich in einem neuwertigen Zustand, sodass für den zukünftigen Eigentümer keine Instandhaltungskosten in absehbarer Zeit zu erwarten sind.
Aufteilung der Einheiten
Das Gebäude erstreckt sich über drei Ebenen (Erdgeschoss, Obergeschoss und Dachgeschoss) mit folgender Wohnraumverteilung:
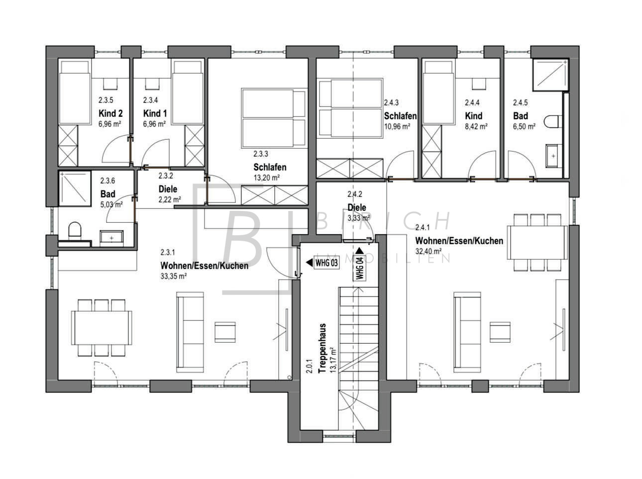
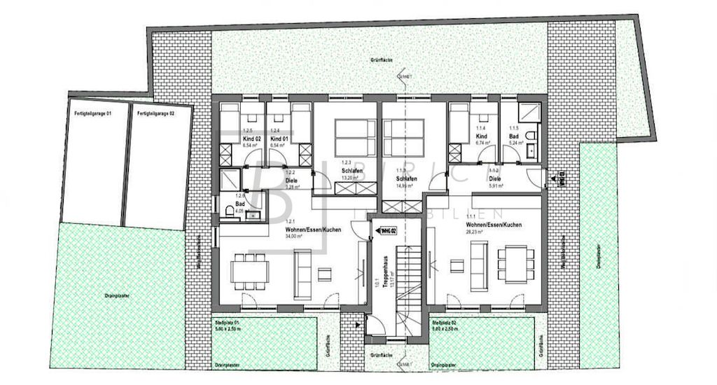
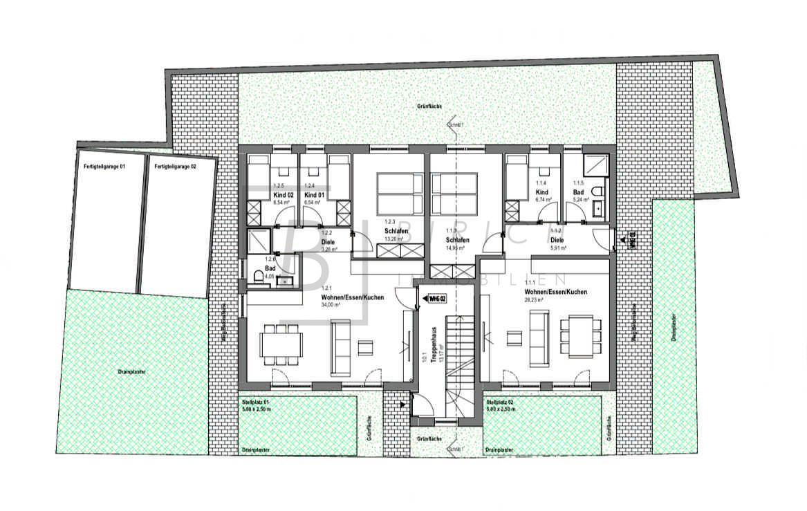
2 × 3-Zimmer-Wohnungen à ca. 61,61 m²
2 × 4-Zimmer-Wohnungen à ca. 67,72 m²
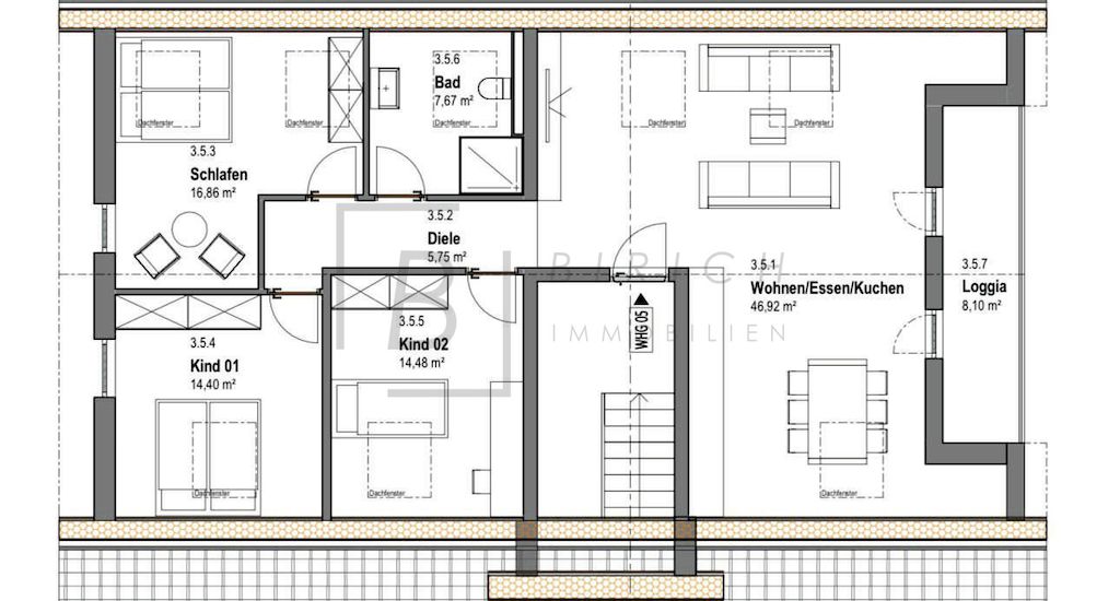
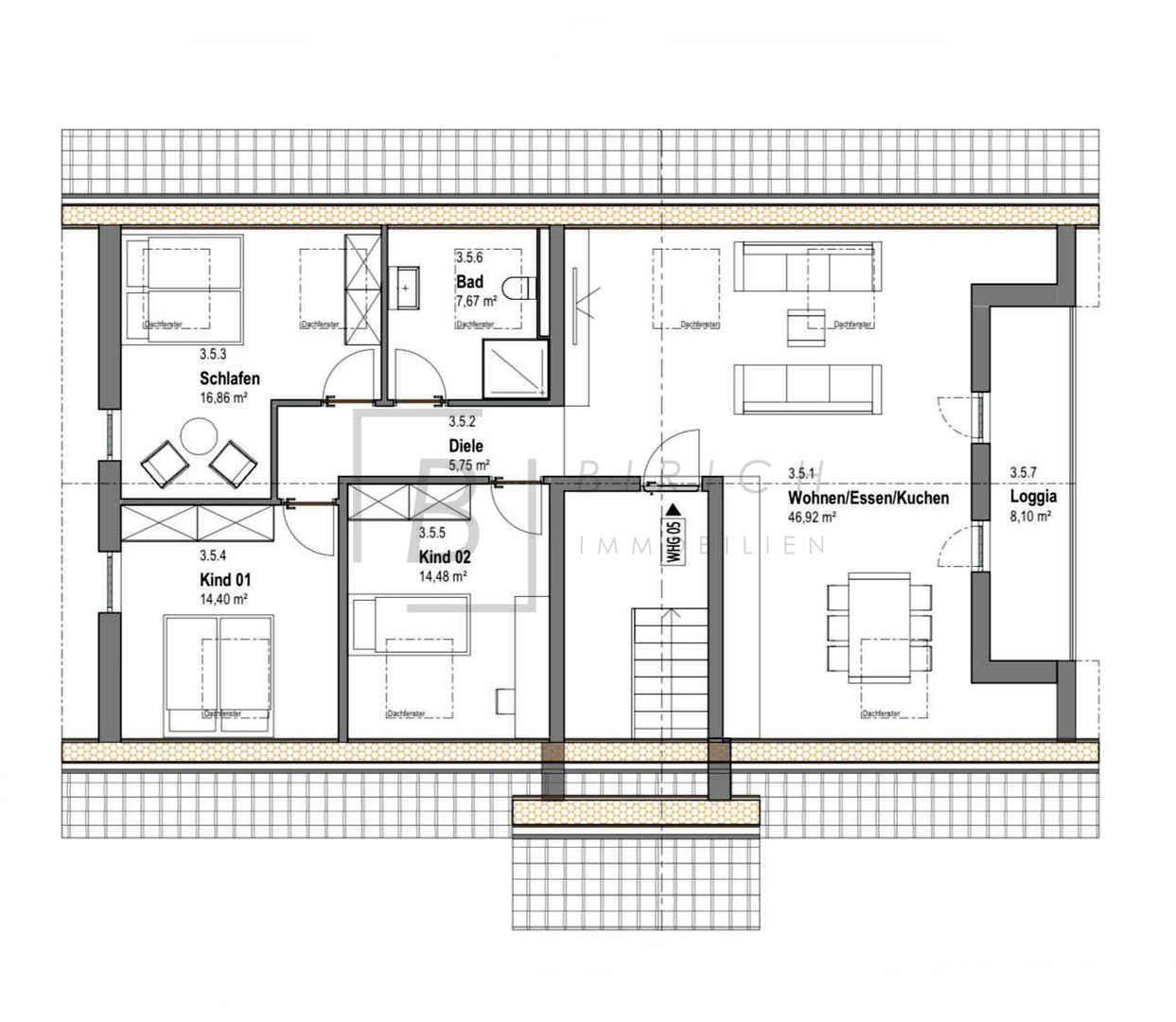
1 × 4-Zimmer-Dachgeschosswohnung mit ca. 97 m² und Loggia
Ausstattung & Energieeffizienz
Großzügige Fensterflächen mit exzellenter Lichtdurchflutung
Jede Wohnung verfügt über Balkon oder Loggia
Hochwertige Bäder mit begehbaren Duschen
Offene Wohn- und Essbereiche mit zeitgemäßem Raumkonzept
Separates Heiz- und Stromsystem je Einheit
Luft-Wasser-Wärmepumpe + Solaranlage für Warmwasser
Zwei Garagenstellplätze + drei Außenstellplätze
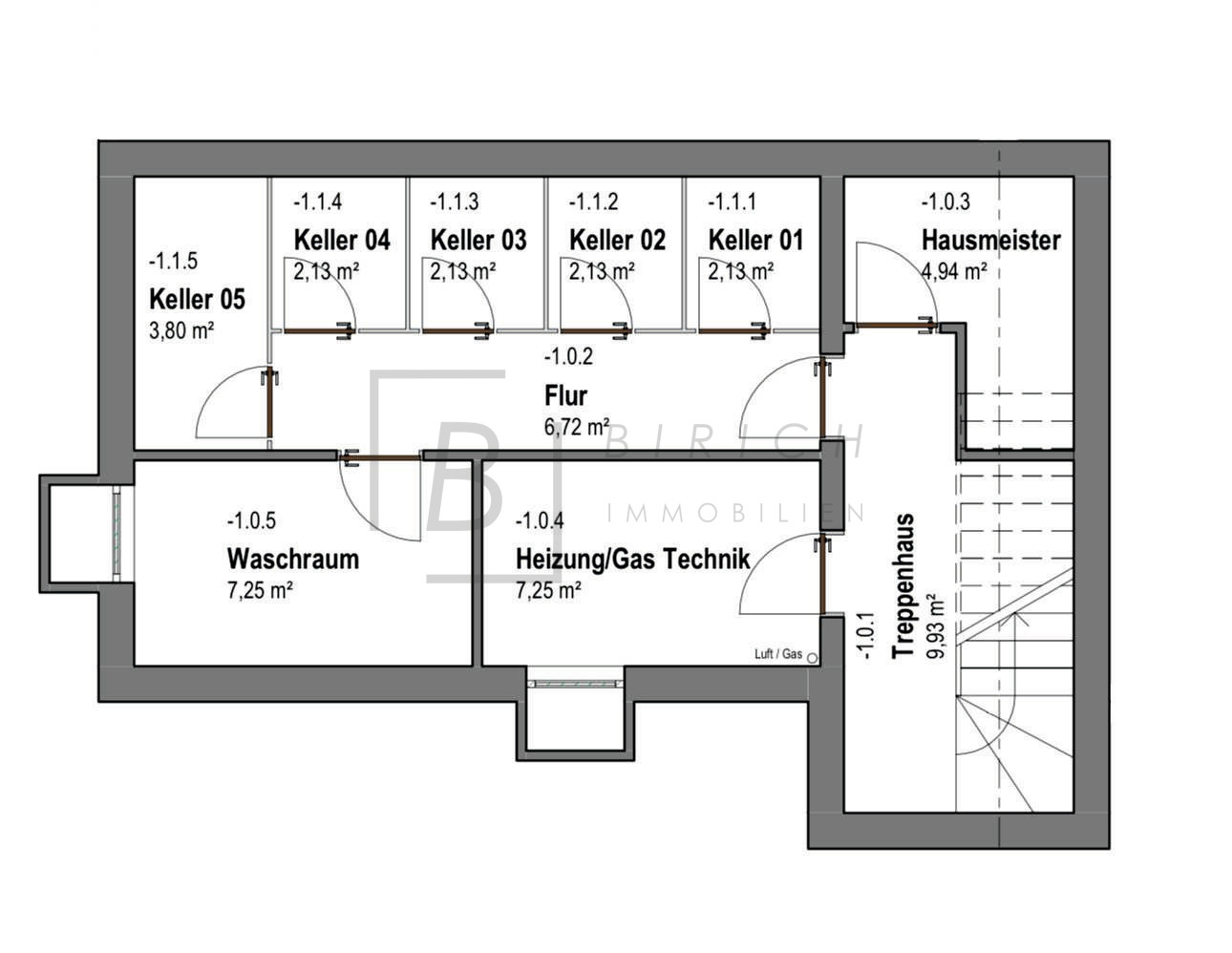
Eigene Kellerabteile und gemeinschaftlicher Waschraum
Investitionsprofil
Die Immobilie ist vollvermietet und bietet derzeit eine jährliche Kaltmiete von ca. 67.200 €, was einer Bruttorendite von ca. 5,17 % (bezogen auf den Kaufpreis von 1.300.000 €) entspricht.
Potenzial für steuerliche Optimierung:
Bei einem angenommenen Gebäudeanteil von 80 % ergibt sich ein jährlicher Abschreibungsbetrag (AfA) von ca. 31.200 € gemäß § 7 Abs. 4 EStG (3 % lineare AfA für Neubauten).
Hinweis: Die tatsächliche steuerliche Auswirkung hängt von Ihrer individuellen Situation ab – eine steuerliche Beratung erfolgt nicht und wird empfohlen.
Dieses hochwertige Mehrfamilienhaus wurde im Jahr 2023 fertiggestellt und umfasst fünf moderne Wohneinheiten mit einer gesamten monatlichen Kaltmieteinnahme von 5.600 €. Das Objekt befindet sich in einem neuwertigen Zustand, sodass für den zukünftigen Eigentümer keine Instandhaltungskosten in absehbarer Zeit zu erwarten sind.
Aufteilung der Einheiten
Das Gebäude erstreckt sich über drei Ebenen (Erdgeschoss, Obergeschoss und Dachgeschoss) mit folgender Wohnraumverteilung:
2 × 3-Zimmer-Wohnungen à ca. 61,61 m²
2 × 4-Zimmer-Wohnungen à ca. 67,72 m²
1 × 4-Zimmer-Dachgeschosswohnung mit ca. 97 m² und Loggia
Ausstattung & Energieeffizienz
Großzügige Fensterflächen mit exzellenter Lichtdurchflutung
Jede Wohnung verfügt über Balkon oder Loggia
Hochwertige Bäder mit begehbaren Duschen
Offene Wohn- und Essbereiche mit zeitgemäßem Raumkonzept
Separates Heiz- und Stromsystem je Einheit
Luft-Wasser-Wärmepumpe + Solaranlage für Warmwasser
Zwei Garagenstellplätze + drei Außenstellplätze
Eigene Kellerabteile und gemeinschaftlicher Waschraum
Investitionsprofil
Die Immobilie ist vollvermietet und bietet derzeit eine jährliche Kaltmiete von ca. 67.200 €, was einer Bruttorendite von ca. 5,17 % (bezogen auf den Kaufpreis von 1.300.000 €) entspricht.
Potenzial für steuerliche Optimierung:
Bei einem angenommenen Gebäudeanteil von 80 % ergibt sich ein jährlicher Abschreibungsbetrag (AfA) von ca. 31.200 € gemäß § 7 Abs. 4 EStG (3 % lineare AfA für Neubauten).
Hinweis: Die tatsächliche steuerliche Auswirkung hängt von Ihrer individuellen Situation ab – eine steuerliche Beratung erfolgt nicht und wird empfohlen.
Lage des Objektes
Das angebotene Mehrfamilienhaus befindet sich in einer zentralen und attraktiven Lage in Krumbach (Schwaben). Die Stadt überzeugt mit einer hervorragenden Infrastruktur und bietet eine hohe Lebensqualität. In unmittelbarer Nähe befinden sich Einkaufsmöglichkeiten, Restaurants, Cafés sowie Ärzte und Apotheken.
Bildungseinrichtungen wie Kindergärten, Grundschulen und weiterführende Schulen sind gut erreichbar und machen die Lage besonders attraktiv für Familien. Zudem bietet Krumbach zahlreiche Freizeitmöglichkeiten, darunter Sportvereine, Grünanlagen und kulturelle Einrichtungen.
Die Verkehrsanbindung ist hervorragend: Mehrere Buslinien und die Bahnlinie RB 78 ermöglichen eine schnelle Verbindung in die umliegenden Städte. Die Bundesstraßen B300 und B16 sowie die nahegelegene Autobahn A8 sorgen für eine gute Erreichbarkeit auch mit dem Auto. So sind Städte wie Günzburg oder Ulm in kurzer Zeit erreichbar.
Bildungseinrichtungen wie Kindergärten, Grundschulen und weiterführende Schulen sind gut erreichbar und machen die Lage besonders attraktiv für Familien. Zudem bietet Krumbach zahlreiche Freizeitmöglichkeiten, darunter Sportvereine, Grünanlagen und kulturelle Einrichtungen.
Die Verkehrsanbindung ist hervorragend: Mehrere Buslinien und die Bahnlinie RB 78 ermöglichen eine schnelle Verbindung in die umliegenden Städte. Die Bundesstraßen B300 und B16 sowie die nahegelegene Autobahn A8 sorgen für eine gute Erreichbarkeit auch mit dem Auto. So sind Städte wie Günzburg oder Ulm in kurzer Zeit erreichbar.
Ausstattung
Investoren-Highlights auf einen Blick
+ Fünf moderne Wohneinheiten mit Wohnflächen zwischen 61 m² und 97 m²
+ Zwei Garagenstellplätze sowie drei Außenstellplätze – für jede Einheit eine Parkmöglichkeit
+ Separates Heiz- und Stromsystem für jede Wohnung – transparente Nebenkosten
+ Energieeffiziente Bauweise mit Luft-Wasser-Wärmepumpe und Solaranlage für Warmwasser
+ Große Fensterflächen für helle, freundliche Räume mit viel Tageslicht
+ Balkon oder Loggia für jede Wohneinheit – zusätzlicher Wohnkomfort
+ Moderne Lichtspots in der Dachgeschosswohnung – stilvolle Beleuchtung inklusive
+ Hochwertige Bäder mit begehbaren Duschen, Bidet und Pissoir – Ausstattung auf gehobenem Niveau
+ Einheitlicher Fliesenbelag und Granitboden im gesamten Haus – hochwertig & pflegeleicht
+ Gut geschnittene Grundrisse, ideal für Mieter jeder Lebensphase
+ Kellerabteile für jede Einheit – zusätzlicher Stauraum für Alltag und Hobby
+ Gemeinschaftlicher Waschraum im Keller – praktisch und platzsparend
+ Voll vermietet – monatliche Kaltmiete 5.600 € / Jahr 67.200 €
+ Attraktive Bruttorendite von ca. 5,17 % bezogen auf den Kaufpreis von 1.300.000 €
+ Steuerliche Abschreibung (AfA) möglich – bei einem Gebäudeanteil von 80 % ergibt sich ein jährlicher Abschreibungswert von ca. 31.200 €
Hinweis: Die tatsächliche steuerliche Auswirkung ist abhängig von Ihrer persönlichen Situation – keine steuerliche Beratung.
+ Fünf moderne Wohneinheiten mit Wohnflächen zwischen 61 m² und 97 m²
+ Zwei Garagenstellplätze sowie drei Außenstellplätze – für jede Einheit eine Parkmöglichkeit
+ Separates Heiz- und Stromsystem für jede Wohnung – transparente Nebenkosten
+ Energieeffiziente Bauweise mit Luft-Wasser-Wärmepumpe und Solaranlage für Warmwasser
+ Große Fensterflächen für helle, freundliche Räume mit viel Tageslicht
+ Balkon oder Loggia für jede Wohneinheit – zusätzlicher Wohnkomfort
+ Moderne Lichtspots in der Dachgeschosswohnung – stilvolle Beleuchtung inklusive
+ Hochwertige Bäder mit begehbaren Duschen, Bidet und Pissoir – Ausstattung auf gehobenem Niveau
+ Einheitlicher Fliesenbelag und Granitboden im gesamten Haus – hochwertig & pflegeleicht
+ Gut geschnittene Grundrisse, ideal für Mieter jeder Lebensphase
+ Kellerabteile für jede Einheit – zusätzlicher Stauraum für Alltag und Hobby
+ Gemeinschaftlicher Waschraum im Keller – praktisch und platzsparend
+ Voll vermietet – monatliche Kaltmiete 5.600 € / Jahr 67.200 €
+ Attraktive Bruttorendite von ca. 5,17 % bezogen auf den Kaufpreis von 1.300.000 €
+ Steuerliche Abschreibung (AfA) möglich – bei einem Gebäudeanteil von 80 % ergibt sich ein jährlicher Abschreibungswert von ca. 31.200 €
Hinweis: Die tatsächliche steuerliche Auswirkung ist abhängig von Ihrer persönlichen Situation – keine steuerliche Beratung.
Energie
| Heizungsart: | Fußbodenheizung |
| Energieträger/Befeuerung: | Luft-Wärme-Pumpe |
Sonstige Informationen
BIRICH Immobilien & Projekte GmbH i.G
Telefon: 07352 - 9415755
E-Mail: info@birich-immobilien.de
Adresse: Benediktusstr. 14, 88416 Ochsenhausen
www.birich-immobilien.de
Umsatzsteuer-Identifikationsnummer gemäß §27 a Umsatzsteuergesetz: DE 319754840
Berufsaufsichtsbehörde im Sinne von § 34 c GewO: IHK Ulm, Olgastr. 95-101, 89073 Ulm
Maklererlaubnis nach 34c durch das Landratsamt Biberach.
Telefon: 07352 - 9415755
E-Mail: info@birich-immobilien.de
Adresse: Benediktusstr. 14, 88416 Ochsenhausen
www.birich-immobilien.de
Umsatzsteuer-Identifikationsnummer gemäß §27 a Umsatzsteuergesetz: DE 319754840
Berufsaufsichtsbehörde im Sinne von § 34 c GewO: IHK Ulm, Olgastr. 95-101, 89073 Ulm
Maklererlaubnis nach 34c durch das Landratsamt Biberach.
Wohnfläche in m²364 m²
|
Zimmeranzahl18
|
Küchenkeine Angabe
|
Bäder
5
|
Balkon/Terasse
Balkone: 3
Terrassen: 2
|
Garage/Stellplätze2
|
Etagen3
|
KellerTEIL
|
Baujahr2022
|
Grundstücksgröße435 m²
|
Nebenkostenkeine Angabe
|
Verfügbar abkeine Angabe
|
Der Kaufpreis für das Objekt beträgt:
1.299.000 €
Maklerprovision:
3,50 % Käuferprovision inkl. MwSt.
