*Modernes Einfamilienhaus Erstbezug in Cserzegtomaj Balaton Ungarn mit Seeblick*
Krause Immobilien
Objektbilder
Zum Vergrößern auf das Bild klicken
Objektstandort
8372 Cserszegtomaj
Anbieter
Krause Immobilien
Gramanstraße 54B
84518 Wald a. d. Alz
Kontakt
| Tel |
08634 9860677 Direkt anrufen |
| Durchwahl |
+49 8634 9860677 Direkt anrufen |
| Mobil |
+49 162 7815898 Direkt anrufen |
| Fax | +49 32 221376975 |
Unser Immobilien-Angebot
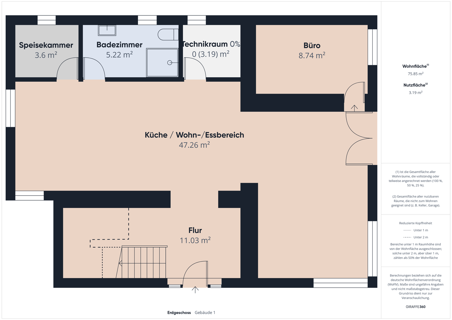
Dieses moderne Einfamilienhaus aus dem Jahr 2023 überzeugt mit einer neuwertigen Ausstattung und großzügigen Nutzflächen. Auf einer Wohnfläche von 161 m² stehen Ihnen fünf Zimmer, darunter zwei Schlafzimmer und zwei Badezimmer mit Badewanne, Dusche und Fenster, zur Verfügung. Das offene Raumkonzept wird durch eine moderne, offene Küche unterstrichen. Für zusätzlichen Stauraum ist durch eine Speisekammer und einen Abstellraum gesorgt.
Das Grundstück bietet mit 1.380 m² viel Freiraum und umfasst auch einen eigenen Garten. Zwei Balkone und eine Terrasse laden zum Entspannen ein. Die Fußbodenheizung sorgt für behagliche Wärme, während die Energietechnik auf einer effizienten Luft-Wärmepumpe basiert, welche auch zur Kühlung genutzt werden kann. Die Innenräume sind mit hochwertigen Fliesenböden ausgestattet. Das Haus ist durch die Kühlfunktion voll klimatisiert, was an heißen Tagen für zusätzlichen Komfort sorgt.
Zur Immobilie gehören ca. acht PKW-Stellplätze, wovon 2 in der Doppelgarage mit Elektrotoren und Fußbodenheizung zugeordnet werden können. Das Objekt lässt sich flexibel nutzen, beispielsweise als Ferienimmobilie. Die Kombination aus moderner Bauweise, energieeffizienter Technik und großzügigen Außenflächen macht dieses Einfamilienhaus zu einer ansprechenden Wohnlösung.
Wir übernehmen die Komplettbetreuung bis zur Übergabe der Immobilie und können Ihnen eine unserer Ferienimmobilien für die Zeit Ihres Aufenthaltes in Ungarn gerne anbieten!
Das Grundstück bietet mit 1.380 m² viel Freiraum und umfasst auch einen eigenen Garten. Zwei Balkone und eine Terrasse laden zum Entspannen ein. Die Fußbodenheizung sorgt für behagliche Wärme, während die Energietechnik auf einer effizienten Luft-Wärmepumpe basiert, welche auch zur Kühlung genutzt werden kann. Die Innenräume sind mit hochwertigen Fliesenböden ausgestattet. Das Haus ist durch die Kühlfunktion voll klimatisiert, was an heißen Tagen für zusätzlichen Komfort sorgt.
Zur Immobilie gehören ca. acht PKW-Stellplätze, wovon 2 in der Doppelgarage mit Elektrotoren und Fußbodenheizung zugeordnet werden können. Das Objekt lässt sich flexibel nutzen, beispielsweise als Ferienimmobilie. Die Kombination aus moderner Bauweise, energieeffizienter Technik und großzügigen Außenflächen macht dieses Einfamilienhaus zu einer ansprechenden Wohnlösung.
Wir übernehmen die Komplettbetreuung bis zur Übergabe der Immobilie und können Ihnen eine unserer Ferienimmobilien für die Zeit Ihres Aufenthaltes in Ungarn gerne anbieten!
Lage des Objektes
Cserszegtomaj liegt im Herzen Westungarns, in der beliebten Balaton-Region, nur wenige Kilometer vom Thermalort Hévíz und dem Plattensee entfernt. Die Gemeinde vereint ländliche Ruhe mit moderner Infrastruktur und zählt zu den gefragten Wohngegenden der Umgebung. Geprägt von sanften Hügeln und einer malerischen Landschaft, bietet der Ort ein hohes Maß an Lebensqualität. In der Gegend finden sich viele Weingüter, Wanderwege und Naherholungsmöglichkeiten. Dank der guten Verkehrsanbindung sind Nachbarorte sowie größere Städte binnen kurzer Zeit erreichbar.
Das Einfamilienhaus befindet sich in ruhiger Lage in einer Wohngegend, die vor allem für ihre idyllische Umgebung bekannt ist. Der Balaton, Europas größter Binnensee, ist rund 3 Kilometer entfernt und ermöglicht umfassende Freizeitaktivitäten wie Schwimmen, Segeln und Radfahren entlang der Promenade. Das weltbekannte Thermalbad in Hévíz ist nach ca. 5 Kilometern erreichbar. Im Umkreis von etwa 2 Kilometern finden sich eine Bushaltestelle, kleinere Einkaufsmöglichkeiten für den täglichen Bedarf und eine Grundschule. Größere Supermärkte und weitere Einkaufsmöglichkeiten befinden sich in Keszthely, circa 4 Kilometer entfernt. Ein regional bekanntes Restaurant liegt in ca. 3 Kilometern Entfernung und lädt zu kulinarischen Genüssen ein. Die vorteilhafte Umgebung und die gute Nahversorgung machen diese Lage insbesondere attraktiv für Familien und Ruhesuchende. Das Gebiet bietet zudem eine gute Anbindung an Wanderwege und Naturpfade, die in wenigen Minuten erreichbar sind.
Das Einfamilienhaus befindet sich in ruhiger Lage in einer Wohngegend, die vor allem für ihre idyllische Umgebung bekannt ist. Der Balaton, Europas größter Binnensee, ist rund 3 Kilometer entfernt und ermöglicht umfassende Freizeitaktivitäten wie Schwimmen, Segeln und Radfahren entlang der Promenade. Das weltbekannte Thermalbad in Hévíz ist nach ca. 5 Kilometern erreichbar. Im Umkreis von etwa 2 Kilometern finden sich eine Bushaltestelle, kleinere Einkaufsmöglichkeiten für den täglichen Bedarf und eine Grundschule. Größere Supermärkte und weitere Einkaufsmöglichkeiten befinden sich in Keszthely, circa 4 Kilometer entfernt. Ein regional bekanntes Restaurant liegt in ca. 3 Kilometern Entfernung und lädt zu kulinarischen Genüssen ein. Die vorteilhafte Umgebung und die gute Nahversorgung machen diese Lage insbesondere attraktiv für Familien und Ruhesuchende. Das Gebiet bietet zudem eine gute Anbindung an Wanderwege und Naturpfade, die in wenigen Minuten erreichbar sind.
Ausstattung
Eine sorgsam zusammengestellte Auswahl an exklusiven Ausstattungsdetails bietet den passenden Rahmen für dieses moderne Einfamilienhaus mit Seeblick:
- moderne Bauweise mit großen Fensterfronten
- Massivbau mit Außendämmung
- bodentiefe Fenster mit 3-fach Isolierverglasung mit Fliegengitter
- lichtdurchflutete Räume
- großzügiger, offener Wohnbereich mit Küche auf ca. 47 m²
- Fußbodenheizung
- 2 Badezimmer mit WC und Dusche, das Master-Bad mit zusätzlicher Badewanne
- elektrische Rollos
- Seeblick
- Pool jederzeit möglich
- Terrasse
- hochwertige Fliesen, teils 60x60
- Doppel-Garage ca. 57 m² mit Elektrotoren
- eingezäuntes Grundstück
- zusätzlich mindestens ca. 6 Stellplätze auf dem Grundstück
- Luft-Wärmepumpe mit zusätzlicher Kühlfunktion
- moderne Bauweise mit großen Fensterfronten
- Massivbau mit Außendämmung
- bodentiefe Fenster mit 3-fach Isolierverglasung mit Fliegengitter
- lichtdurchflutete Räume
- großzügiger, offener Wohnbereich mit Küche auf ca. 47 m²
- Fußbodenheizung
- 2 Badezimmer mit WC und Dusche, das Master-Bad mit zusätzlicher Badewanne
- elektrische Rollos
- Seeblick
- Pool jederzeit möglich
- Terrasse
- hochwertige Fliesen, teils 60x60
- Doppel-Garage ca. 57 m² mit Elektrotoren
- eingezäuntes Grundstück
- zusätzlich mindestens ca. 6 Stellplätze auf dem Grundstück
- Luft-Wärmepumpe mit zusätzlicher Kühlfunktion
Energie
| Heizungsart: | Fußbodenheizung |
| Energieträger/Befeuerung: | Luft-Wärme-Pumpe |
Sonstige Informationen
Wir freuen uns sehr, Ihnen dieses schöne Einfamilienhaus mit Seeblick anbieten zu können.
Die Immobilie ist für den Käufer provisionsfrei!
Gerne vereinbaren wir einen Besichtigungstermin mit Ihnen vor Ort. (Unterkunft für die Zeit Ihres Aufenthaltes kann von uns durch eigene Ferienimmobilien organisiert werden!)
Bitte nutzen Sie vorab unsere 360 Grad Begehung!
Weitere Informationen erhalten Sie bei der Besichtigung.
Wichtiger Hinweis: Bitte haben Sie Verständnis dafür, dass nur Anfragen mit Adresse und korrekter Telefonnummer bearbeitet werden können.
Sollten Sie noch keinen Kapitalnachweis oder eine Finanzierungsbestätigung haben, stehen wir Ihnen mit unseren Kooperationspartnern für Immobilienfinanzierungen gerne hilfreich zur Seite!
"Ein Herz für Ihr Objekt"
Die Immobilie ist für den Käufer provisionsfrei!
Gerne vereinbaren wir einen Besichtigungstermin mit Ihnen vor Ort. (Unterkunft für die Zeit Ihres Aufenthaltes kann von uns durch eigene Ferienimmobilien organisiert werden!)
Bitte nutzen Sie vorab unsere 360 Grad Begehung!
Weitere Informationen erhalten Sie bei der Besichtigung.
Wichtiger Hinweis: Bitte haben Sie Verständnis dafür, dass nur Anfragen mit Adresse und korrekter Telefonnummer bearbeitet werden können.
Sollten Sie noch keinen Kapitalnachweis oder eine Finanzierungsbestätigung haben, stehen wir Ihnen mit unseren Kooperationspartnern für Immobilienfinanzierungen gerne hilfreich zur Seite!
"Ein Herz für Ihr Objekt"
Wohnfläche in m²161 m²
|
Zimmeranzahl5
|
KüchenOffen
|
Bäder
2
(Ausstattung:
Dusche,
Wanne,
Fenster)
|
Balkon/Terasse
Balkone: 2
Terrassen: 1
|
Garage/Stellplätzekeine Angabe
|
Etagenkeine Angabe
|
Kellerkeine Angabe
|
Baujahr2023
|
Grundstücksgröße1380 m²
|
Nebenkostenkeine Angabe
|
Verfügbar abkeine Angabe
|
Kaufpreis für das Objekt:
Auf Anfrage
Maklerprovision:
Für den Käufer provisionsfrei!
