*Große Halle - bisherige Zimmerei - LKW Zufahrt und Deckenkran*
Krause Immobilien
Objektbilder
Objektstandort
84518 Garching a d Alz
Anbieter
Krause Immobilien
Gramanstraße 54B
84518 Wald a. d. Alz
Kontakt
| Tel |
08634 9860677 Direkt anrufen |
| Durchwahl |
+49 8634 9860677 Direkt anrufen |
| Mobil |
+49 162 7815898 Direkt anrufen |
| Fax | +49 32 221376975 |
Unser Immobilien-Angebot
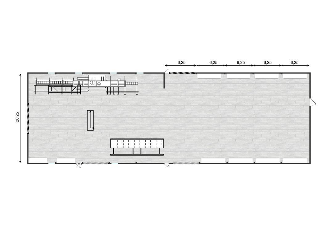
Zum Verkauf steht eine vielseitig nutzbare Halle, die sich auf zwei Etagen erstreckt und insgesamt 1.589 m² Lager- bzw. Produktionsfläche bietet. Erbaut im Jahre 1973, präsentiert sie sich heute in einem gepflegten Zustand, was nicht zuletzt auf die Modernisierung im Jahre 2004 zurückzuführen ist. Sowohl die Böden aus Estrich als auch die installierten Hilfsmittel, wie der Deckenkran, unterstützen eine effiziente Nutzung im industriellen oder gewerblichen Sektor. Die Halle weist 4 Elektrotore auf.
Die Immobilie wird beheizt durch einen Energieträger aus Holz, was für nachhaltige und kosteneffiziente Heizmöglichkeiten sorgt. Die Verfügbarkeit ist ab dem 1. Dezember 2025 gegeben, somit steht einer zeitnahen Inbetriebnahme nichts im Wege.
Es bietet sich ein Raumangebot, das ideal für Unternehmen ist, die eine Kombination aus Lager- und Produktionsfläche suchen. Auch für Investoren könnte dies aufgrund des Erhaltungszustandes und der Ausstattungsmerkmale ein interessantes Objekt darstellen. Die Halle ist sowohl für die Weitervermietung als auch für die Eigennutzung konzipiert und passt sich flexibel den Anforderungen ihres neuen Besitzers an.
Die Immobilie wird beheizt durch einen Energieträger aus Holz, was für nachhaltige und kosteneffiziente Heizmöglichkeiten sorgt. Die Verfügbarkeit ist ab dem 1. Dezember 2025 gegeben, somit steht einer zeitnahen Inbetriebnahme nichts im Wege.
Es bietet sich ein Raumangebot, das ideal für Unternehmen ist, die eine Kombination aus Lager- und Produktionsfläche suchen. Auch für Investoren könnte dies aufgrund des Erhaltungszustandes und der Ausstattungsmerkmale ein interessantes Objekt darstellen. Die Halle ist sowohl für die Weitervermietung als auch für die Eigennutzung konzipiert und passt sich flexibel den Anforderungen ihres neuen Besitzers an.
Lage des Objektes
Garching an der Alz ist eine kleine, aufstrebende Gemeinde in der bayerischen Region Oberbayern. Sie zeichnet sich durch eine malerische Umgebung, eine gute Infrastruktur und eine hohe Lebensqualität aus. Die Nähe zu wichtigen Verkehrswegen, die Anbindung an den öffentlichen Nahverkehr sowie die umliegenden Grünflächen machen diese Region besonders attraktiv für Unternehmen und Privatpersonen, die Wert auf eine gute Balance zwischen urbanem und natürlichem Lebensraum legen.
Die beschriebene Halle befindet sich in einem industriell geprägten Teil von Garching an der Alz, welcher gekennzeichnet ist durch eine gute Anbindung an lokale Verkehrsnetze. In der Nähe verläuft die Bundesstraße B299, welche eine direkte Verbindung in die umliegenden Städte wie Altötting und Mühldorf am Inn ermöglicht. Beide Städte sind jeweils nur ca. 15 Kilometer entfernt und bieten umfangreiche Einkaufsmöglichkeiten sowie kulturelle Angebote.
Ein bedeutender Vorteil des Standorts ist die Nähe zum Alzkanal, der nur etwa 2 Kilometer entfernt fließt und eine idyllische Kulisse für Pausen oder geschäftliche Besprechungen im Grünen bietet. Des Weiteren ist das Zentrum von Garching, mit diversen Dienstleistern, Banken, Restaurants und kleinen Geschäften, lediglich 1 Kilometer entfernt und somit schnell erreichbar.
Die örtliche Infrastruktur wird durch die Ansiedlung von mittelständischen Unternehmen im näheren Umkreis gestärkt, was Standortvorteile für B2B-Beziehungen bieten kann. Auch Fachkräfte finden durch die angenehme Wohnlage und die Verfügbarkeit lokaler Bildungseinrichtungen, wie der Grund- und Mittelschule (ca. 1,5 Kilometer entfernt), attraktive Bedingungen vor.
Für überregionale Geschäftspartner ist die Erreichbarkeit über den ca. 60 Kilometer entfernnten Flughafen München besonders relevant, der sowohl für nationale als auch internationale Verbindungen Anschluss bietet.
In unmittelbarer Nachbarschaft zur Halle befinden sich diverse Gewerbebetriebe, die eine synergetische und dynamische Geschäftsumgebung schaffen.
Die beschriebene Halle befindet sich in einem industriell geprägten Teil von Garching an der Alz, welcher gekennzeichnet ist durch eine gute Anbindung an lokale Verkehrsnetze. In der Nähe verläuft die Bundesstraße B299, welche eine direkte Verbindung in die umliegenden Städte wie Altötting und Mühldorf am Inn ermöglicht. Beide Städte sind jeweils nur ca. 15 Kilometer entfernt und bieten umfangreiche Einkaufsmöglichkeiten sowie kulturelle Angebote.
Ein bedeutender Vorteil des Standorts ist die Nähe zum Alzkanal, der nur etwa 2 Kilometer entfernt fließt und eine idyllische Kulisse für Pausen oder geschäftliche Besprechungen im Grünen bietet. Des Weiteren ist das Zentrum von Garching, mit diversen Dienstleistern, Banken, Restaurants und kleinen Geschäften, lediglich 1 Kilometer entfernt und somit schnell erreichbar.
Die örtliche Infrastruktur wird durch die Ansiedlung von mittelständischen Unternehmen im näheren Umkreis gestärkt, was Standortvorteile für B2B-Beziehungen bieten kann. Auch Fachkräfte finden durch die angenehme Wohnlage und die Verfügbarkeit lokaler Bildungseinrichtungen, wie der Grund- und Mittelschule (ca. 1,5 Kilometer entfernt), attraktive Bedingungen vor.
Für überregionale Geschäftspartner ist die Erreichbarkeit über den ca. 60 Kilometer entfernnten Flughafen München besonders relevant, der sowohl für nationale als auch internationale Verbindungen Anschluss bietet.
In unmittelbarer Nachbarschaft zur Halle befinden sich diverse Gewerbebetriebe, die eine synergetische und dynamische Geschäftsumgebung schaffen.
Ausstattung
- ça. 500 m² Kellerfläche
- ca. 1120 m² Hallenfläche
- Pkw-Stellplätze
- ca. 2182 m² Grundstücksgröße
- Baujahr 1973 ursprüngliche Halle
- Baujahr 2004 Erweiterung der ursprünglichen Halle mit Wärmedämmung
- 30KW Photovoltaik
- 4 Elektrotore
- Hallenkran 3to
- Hackschnitzelheizung mit Deckenstrahlern in der Halle
- kurzfrisitig verfügbar
Sonstige Informationen
Wir freuen uns sehr, Ihnen dieses große Halle anbieten zu können.
Die Vermittlungsprovision beträgt 1,64 % inkl. MwSt.
Gerne vereinbaren wir einen Besichtigungstermin mit Ihnen.
Weitere Informationen erhalten Sie bei der Besichtigung.
Wichtiger Hinweis: Bitte haben Sie Verständnis dafür, dass nur Anfragen mit Adresse und korrekter Telefonnummer bearbeitet werden können.
Sollten Sie noch keinen Kapitalnachweis oder eine Finanzierungsbestätigung haben, stehen wir Ihnen mit unseren Kooperationspartnern für Immobilienfinanzierungen gerne hilfreich zur Seite!
"Ein Herz für Ihr Objekt"
Die Vermittlungsprovision beträgt 1,64 % inkl. MwSt.
Gerne vereinbaren wir einen Besichtigungstermin mit Ihnen.
Weitere Informationen erhalten Sie bei der Besichtigung.
Wichtiger Hinweis: Bitte haben Sie Verständnis dafür, dass nur Anfragen mit Adresse und korrekter Telefonnummer bearbeitet werden können.
Sollten Sie noch keinen Kapitalnachweis oder eine Finanzierungsbestätigung haben, stehen wir Ihnen mit unseren Kooperationspartnern für Immobilienfinanzierungen gerne hilfreich zur Seite!
"Ein Herz für Ihr Objekt"
Wohnfläche in m²keine Angabe
|
Zimmeranzahlkeine Angabe
|
Küchenkeine Angabe
|
Bäder
keine Angabe
|
Balkon/Terasse
keine Angabe
|
Garage/Stellplätzekeine Angabe
|
Etagen2
|
Kellerkeine Angabe
|
Baujahr1973
|
Grundstücksgrößekeine Angabe
|
Nebenkostenkeine Angabe
|
Verfügbar ab2025-12-01
|
Nutzflächekeine Angabe
|
Ladenflächekeine Angabe
|
Büroflächekeine Angabe
|
Lagerfläche1589 m²
|
Der Kaufpreis für das Objekt beträgt:
1.300.000 €
Maklerprovision:
Die Vermittlungsprovision beträgt 1,64 % inklusive MwSt
