*Freistehendes Einfamilienhaus mit sonnigem Grundstück - ruhige Wohnidylle in Bad Birnbach*
Krause Immobilien
Objektbilder
Zum Vergrößern auf das Bild klicken
Objektstandort
84364 Bad Birnbach
Anbieter
Krause Immobilien
Gramanstraße 54B
84518 Garching an der Alz
Kontakt
Unser Immobilien-Angebot
Das gepflegte Einfamilienhaus aus dem Jahr 1977 überzeugt mit großzügigen 11 Zimmern auf zwei Etagen und bietet mit einer Wohnfläche von rund 227,96 m² sowie einer zusätzlichen Nutzfläche von etwa 248 m² ein beeindruckendes Platzangebot für Familien oder Menschen mit hohem Raumbedarf.
Die Raumaufteilung ist ideal durchdacht: Es stehen fünf Schlafzimmer, drei Badezimmer (Bad und WC getrennt) sowie ein Abstellraum und weitere vielseitig nutzbare Räume zur Verfügung. Ein ausgebauter Dachboden, ein großer Keller sowie ein separater Wasch- und Trockenraum runden das Raumangebot perfekt ab.
Im Erdgeschoss befindet sich ein großes Wohnzimmer mit 30,32 m², das durch seine freundliche Atmosphäre und den gemütlichen Holzofen beeindruckt. Der direkt angrenzende Wintergarten (13,79 m²) erweitert den Wohnraum und bietet einen herrlichen Blick in den Garten.
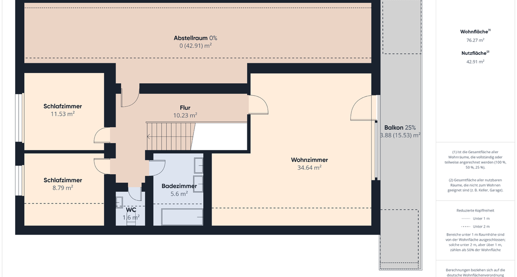
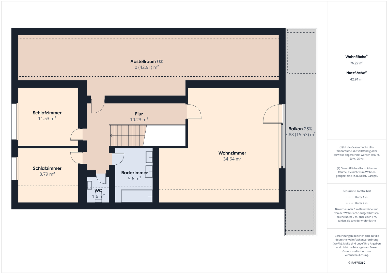
Im Obergeschoss wartet ein weiteres, beeindruckend großes Wohnzimmer mit 34,64 m², das durch seine Helligkeit überzeugt und sich ideal als Familienaufenthaltsraum oder großzügiges Studio eignet.
Das ca. 1.500 m² große, vollständig eingezäunte Grundstück bietet viel Privatsphäre und reichlich Platz für Gartenliebhaber. Eine großzügige Terrasse lädt zum Entspannen, Grillen und Verweilen im Grünen ein.
Beheizt wird das Haus über eine Gas-Zentralheizung. Zusätzlich sorgt der Holzofen im Wohnbereich für wohlige Wärme und eine besonders angenehme Atmosphäre. Ein SAT-TV-Anschluss ist vorhanden, und für Fahrzeuge stehen zwei Garagenstellplätze zur Verfügung.
Die letzte Modernisierung erfolgte im Jahr 2009, wodurch sich die Immobilie heute in einem gepflegten und ordentlichen Zustand präsentiert.
Ein wunderschönes, großzügiges Zuhause, das Funktionalität, Raumvielfalt und Behaglichkeit vereint – ideal für Familien oder alle, die Wert auf viel Wohnraum, Ruhe und Lebensqualität legen.
Die Raumaufteilung ist ideal durchdacht: Es stehen fünf Schlafzimmer, drei Badezimmer (Bad und WC getrennt) sowie ein Abstellraum und weitere vielseitig nutzbare Räume zur Verfügung. Ein ausgebauter Dachboden, ein großer Keller sowie ein separater Wasch- und Trockenraum runden das Raumangebot perfekt ab.
Im Erdgeschoss befindet sich ein großes Wohnzimmer mit 30,32 m², das durch seine freundliche Atmosphäre und den gemütlichen Holzofen beeindruckt. Der direkt angrenzende Wintergarten (13,79 m²) erweitert den Wohnraum und bietet einen herrlichen Blick in den Garten.
Im Obergeschoss wartet ein weiteres, beeindruckend großes Wohnzimmer mit 34,64 m², das durch seine Helligkeit überzeugt und sich ideal als Familienaufenthaltsraum oder großzügiges Studio eignet.
Das ca. 1.500 m² große, vollständig eingezäunte Grundstück bietet viel Privatsphäre und reichlich Platz für Gartenliebhaber. Eine großzügige Terrasse lädt zum Entspannen, Grillen und Verweilen im Grünen ein.
Beheizt wird das Haus über eine Gas-Zentralheizung. Zusätzlich sorgt der Holzofen im Wohnbereich für wohlige Wärme und eine besonders angenehme Atmosphäre. Ein SAT-TV-Anschluss ist vorhanden, und für Fahrzeuge stehen zwei Garagenstellplätze zur Verfügung.
Die letzte Modernisierung erfolgte im Jahr 2009, wodurch sich die Immobilie heute in einem gepflegten und ordentlichen Zustand präsentiert.
Ein wunderschönes, großzügiges Zuhause, das Funktionalität, Raumvielfalt und Behaglichkeit vereint – ideal für Familien oder alle, die Wert auf viel Wohnraum, Ruhe und Lebensqualität legen.
Lage des Objektes
Bad Birnbach liegt im niederbayerischen Landkreis Rottal-Inn und ist weit über die Region hinaus als Kurort bekannt. Die idyllische Marktgemeinde bietet eine hohe Lebensqualität und verbindet Tradition mit modernem Erholungsflair. Das ländliche Umfeld wird durch sanfte Hügel und grüne Wiesen geprägt, was die Region besonders reizvoll macht. Bad Birnbach wird oft als "Original Wohlfühltherme" Deutschlands bezeichnet und zieht mit seiner Rottal Terme Kurgäste und Wellnessliebhaber an.
Die Immobilie befindet sich in einer ruhigen Wohngegend im Herzen von Bad Birnbach, die sich durch eine angenehme Nachbarschaftsstruktur auszeichnet. Die Rottal Terme ist lediglich 1,2 km entfernt und ermöglicht so eine schnelle Erreichbarkeit für Erholungssuchende. Einkaufsmöglichkeiten für den täglichen Bedarf, wie ein Supermarkt, befinden sich in etwa 900 Metern Entfernung. Die nächste Grundschule ist in ca. 1,1 km erreichbar, wodurch die Lage auch für Familien attraktiv ist. Eine Apotheke sowie medizinische Versorgung finden Sie in 950 Metern Entfernung. Restaurants und Cafés sind in einem Umkreis von etwa 1 km angesiedelt. Sport- und Freizeitangebote, wie der Golfpark Bella Vista, befinden sich in nur 1,8 km Entfernung und bieten zusätzliche Erholungsmöglichkeiten. Die Verkehrsanbindung ist dank der zentralen Lage gut, und die Bushaltestelle ist nur 750 Meter entfernt. Der nähere Umkreis besticht durch ruhige Straßen und eine naturnahe Umgebung, die zu Spaziergängen oder Aktivitäten an der frischen Luft einlädt.
Die Immobilie befindet sich in einer ruhigen Wohngegend im Herzen von Bad Birnbach, die sich durch eine angenehme Nachbarschaftsstruktur auszeichnet. Die Rottal Terme ist lediglich 1,2 km entfernt und ermöglicht so eine schnelle Erreichbarkeit für Erholungssuchende. Einkaufsmöglichkeiten für den täglichen Bedarf, wie ein Supermarkt, befinden sich in etwa 900 Metern Entfernung. Die nächste Grundschule ist in ca. 1,1 km erreichbar, wodurch die Lage auch für Familien attraktiv ist. Eine Apotheke sowie medizinische Versorgung finden Sie in 950 Metern Entfernung. Restaurants und Cafés sind in einem Umkreis von etwa 1 km angesiedelt. Sport- und Freizeitangebote, wie der Golfpark Bella Vista, befinden sich in nur 1,8 km Entfernung und bieten zusätzliche Erholungsmöglichkeiten. Die Verkehrsanbindung ist dank der zentralen Lage gut, und die Bushaltestelle ist nur 750 Meter entfernt. Der nähere Umkreis besticht durch ruhige Straßen und eine naturnahe Umgebung, die zu Spaziergängen oder Aktivitäten an der frischen Luft einlädt.
Ausstattung
- Einfamilienhaus in solider Massivbauweise
- Großes, eingezäuntes Grundstück
- Überwiegend ebene Rasenfläche
- Holzverkleidung im Giebelbereich
- Wintergarten
- Balkon im Obergeschoss
- Außenrollläden an fast allen Fenstern
- Zufahrt mit Parkmöglichkeiten
- Doppelgarage
- Bodenfliesen
- Laminat
- Massive Holztreppe mit Schmiedeeisen-Geländer
- 2-fach isolierverglaste Holz & Kunststofffenster
- Holzofen im Wohnzimmer
- Bad & WC getrennt
- Voll unterkellert
- Großes, eingezäuntes Grundstück
- Überwiegend ebene Rasenfläche
- Holzverkleidung im Giebelbereich
- Wintergarten
- Balkon im Obergeschoss
- Außenrollläden an fast allen Fenstern
- Zufahrt mit Parkmöglichkeiten
- Doppelgarage
- Bodenfliesen
- Laminat
- Massive Holztreppe mit Schmiedeeisen-Geländer
- 2-fach isolierverglaste Holz & Kunststofffenster
- Holzofen im Wohnzimmer
- Bad & WC getrennt
- Voll unterkellert
Energie
| Heizungsart: | Zentralheizung |
| Energieträger/Befeuerung: | Gas |
Sonstige Informationen
Wir freuen uns sehr, Ihnen diese schöne Immobilie anbieten zu können.
Die Vermittlungsprovision beträgt 3,00 % inklusive MwSt.
Gerne vereinbaren wir einen Besichtigungstermin mit Ihnen.
Bitte nutzen Sie vorab unsere 360 Grad Begehung!
Der Energieausweis ist beantragt und liegt bei Besichtigung vor!
Weitere Informationen erhalten Sie bei der Besichtigung.
Wichtiger Hinweis: Bitte haben Sie Verständnis dafür, dass nur Anfragen mit Adresse und korrekter Telefonnummer bearbeitet werden können.
Sollten Sie noch keinen Kapitalnachweis oder eine Finanzierungsbestätigung haben, stehen wir Ihnen mit unseren Kooperationspartnern für Immobilienfinanzierungen gerne hilfreich zur Seite!
"Ein Herz für Ihr Objekt"
Die Vermittlungsprovision beträgt 3,00 % inklusive MwSt.
Gerne vereinbaren wir einen Besichtigungstermin mit Ihnen.
Bitte nutzen Sie vorab unsere 360 Grad Begehung!
Der Energieausweis ist beantragt und liegt bei Besichtigung vor!
Weitere Informationen erhalten Sie bei der Besichtigung.
Wichtiger Hinweis: Bitte haben Sie Verständnis dafür, dass nur Anfragen mit Adresse und korrekter Telefonnummer bearbeitet werden können.
Sollten Sie noch keinen Kapitalnachweis oder eine Finanzierungsbestätigung haben, stehen wir Ihnen mit unseren Kooperationspartnern für Immobilienfinanzierungen gerne hilfreich zur Seite!
"Ein Herz für Ihr Objekt"
Wohnfläche in m²227,96 m²
|
Zimmeranzahl11
|
Küchenkeine Angabe
|
Bäder
3
|
Balkon/Terasse
Balkone: 1
Terrassen: 1
|
Garage/Stellplätze2
|
Etagen2
|
KellerJA
|
Baujahr1977
|
Grundstücksgröße1500 m²
|
Nebenkostenkeine Angabe
|
Verfügbar abkeine Angabe
|
Der Kaufpreis für das Objekt beträgt:
499.000 €
Maklerprovision:
Die Vermittlungsprovision beträgt 3.00% inklusive MwSt
