*Familienglück im großen Einfamilienhaus* mit schönem Garten und Doppelgarage
Krause Immobilien
Objektbilder
Zum Vergrößern auf das Bild klicken
Objektstandort
84177 Gottfrieding
Anbieter
Krause Immobilien
Gramanstraße 54B
84518 Garching an der Alz
Kontakt
Unser Immobilien-Angebot
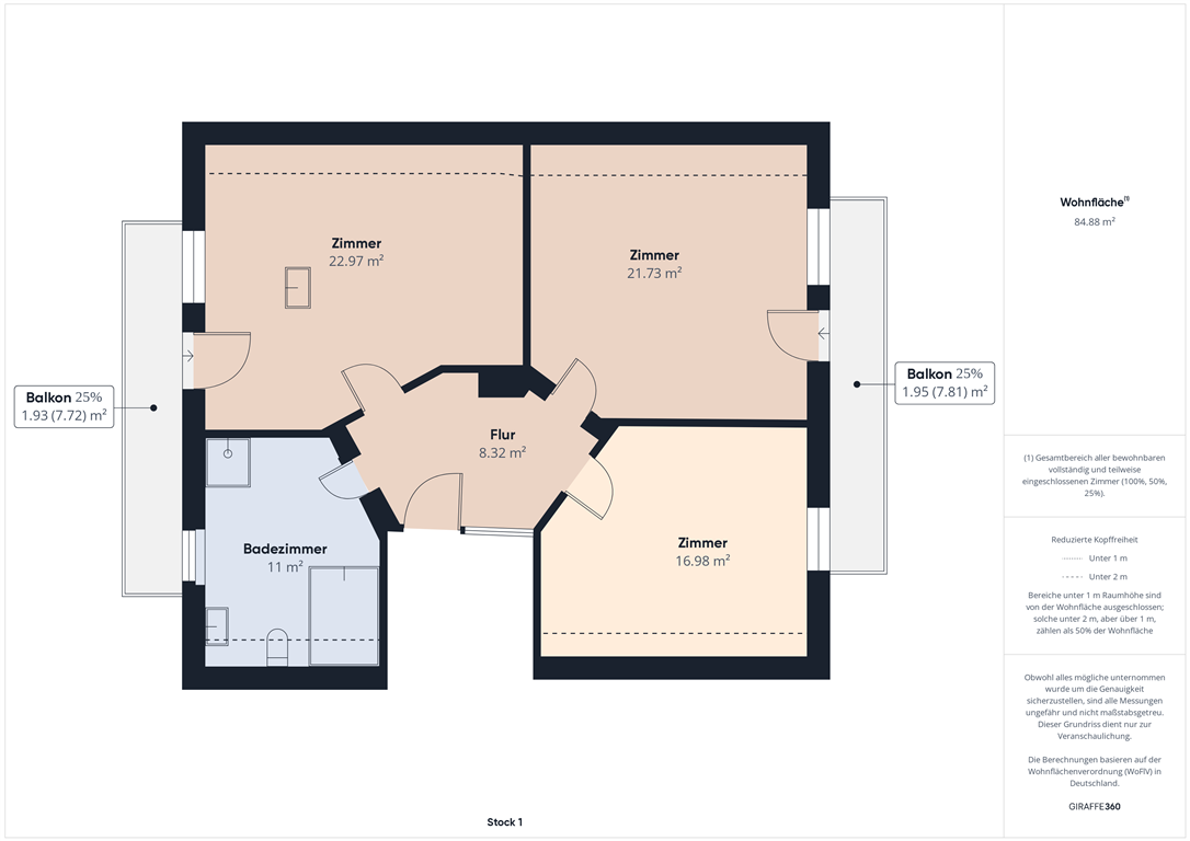
Wir freuen uns, Ihnen dieses gepflegte Einfamilienhaus aus dem Jahr 1993 vorzustellen. Die Immobilie erstreckt sich über zwei Etagen, umfasst 6 geräumige Zimmer und bietet mit einer Wohnfläche von 179 m² sowie einer Nutzfläche von 371,6 m² genügend Platz für eine große Familie oder für all diejenigen, die das Zusammenspiel aus Komfort und Freiraum zu schätzen wissen.
Das Anwesen verfügt über 4 behagliche Schlafzimmer und 3 Badezimmer, die jeweils mit einer Dusche, Fenster und einer Badewanne ausgestattet sind, um den alltäglichen Komfort zu gewährleisten. Die Einbauküche lädt zum gemeinsamen Kochen ein und die separate Speisekammer bietet zusätzlichen Stauraum für Vorräte. Weiterhin gibt es einen praktischen Abstellraum sowie einen Wasch- und Trockenraum.
Für Wärme und Behaglichkeit sorgt eine Gasheizung und zwei Schwedenöfen, welche sich in der Energieeffizienzklasse D widerspiegelt. Die Fußbodenbeläge setzen sich aus Fliesen und Laminat zusammen und fügen sich harmonisch in das Gesamtbild des Hauses ein.
Erholung im Freien bieten die 2 Balkone und die Terrasse, welche ausreichend Platz zur Entspannung und für geselliges Beisammensein im Freien bieten. Das 749 m² große Grundstück bietet dabei auch Kindern ausreichend Fläche zum Spielen.
Parkmöglichkeiten sind mit 4 Stellplätzen, darunter eine Garage, reichlich gegeben. Satelliten-TV-Anschlüsse und ein vorhandener Keller runden das Angebot ab.
Das Objekt wird ab dem 1. April 2025 bezugsfrei und wartet darauf, zu Ihrem neuen Zuhause zu werden.
Das Anwesen verfügt über 4 behagliche Schlafzimmer und 3 Badezimmer, die jeweils mit einer Dusche, Fenster und einer Badewanne ausgestattet sind, um den alltäglichen Komfort zu gewährleisten. Die Einbauküche lädt zum gemeinsamen Kochen ein und die separate Speisekammer bietet zusätzlichen Stauraum für Vorräte. Weiterhin gibt es einen praktischen Abstellraum sowie einen Wasch- und Trockenraum.
Für Wärme und Behaglichkeit sorgt eine Gasheizung und zwei Schwedenöfen, welche sich in der Energieeffizienzklasse D widerspiegelt. Die Fußbodenbeläge setzen sich aus Fliesen und Laminat zusammen und fügen sich harmonisch in das Gesamtbild des Hauses ein.
Erholung im Freien bieten die 2 Balkone und die Terrasse, welche ausreichend Platz zur Entspannung und für geselliges Beisammensein im Freien bieten. Das 749 m² große Grundstück bietet dabei auch Kindern ausreichend Fläche zum Spielen.
Parkmöglichkeiten sind mit 4 Stellplätzen, darunter eine Garage, reichlich gegeben. Satelliten-TV-Anschlüsse und ein vorhandener Keller runden das Angebot ab.
Das Objekt wird ab dem 1. April 2025 bezugsfrei und wartet darauf, zu Ihrem neuen Zuhause zu werden.
Lage des Objektes
Gottfrieding ist eine idyllische Gemeinde in Niederbayern, gelegen in der reizvollen Landschaft des Vilstals. Geprägt durch ein harmonisches Zusammenspiel von ländlichem Charme und zeitgemäßer Infrastruktur, bietet Gottfrieding den Einwohnern eine hohe Lebensqualität. Zahlreiche Freizeitmöglichkeiten in der Natur sowie eine gute Anbindung an regionale Zentren machen den Ort besonders attraktiv für Familien und Naturliebhaber.
In einem ruhigen Wohngebiet gelegen, zeichnet sich die beschriebene Immobilie durch ihre Nähe zur Natur und gleichzeitige gute Erreichbarkeit lokaler Infrastruktur aus. Fußläufig ist das Ortszentrum innerhalb von ca. 10 Minuten zu erreichen, wo Einkaufsmöglichkeiten, eine Apotheke und eine Bank zur Verfügung stehen. Für Familien ist die Lage besonders vorteilhaft, da Schulen und Kindergärten sich in einem Umkreis von weniger als 2 Kilometern befinden. Die umgebende Landschaft lädt zu ausgedehnten Spaziergängen und Radtouren ein, wobei die Vils nur etwa 1,5 Kilometer entfernt fließt und Möglichkeiten zur Erholung und sportlichen Aktivität bietet. Ärzte und eine Zahnarztpraxis sind in der unmittelbaren Umgebung präsent, was kurze Wege im Alltag garantiert. Ein regionales Restaurant sowie ein Café im Ortskern bereichern das kulinarische Angebot. Die Anbindung an den öffentlichen Nahverkehr ist mit einer Bushaltestelle rund 500 Meter entfernt gewährleistet, wodurch die umliegenden Städte bequem zu erreichen sind. Die Autobahnanbindung A92 ist in etwa 10 Fahrminuten zu erreichen, was die Mobilität für Berufspendler optimiert.
In einem ruhigen Wohngebiet gelegen, zeichnet sich die beschriebene Immobilie durch ihre Nähe zur Natur und gleichzeitige gute Erreichbarkeit lokaler Infrastruktur aus. Fußläufig ist das Ortszentrum innerhalb von ca. 10 Minuten zu erreichen, wo Einkaufsmöglichkeiten, eine Apotheke und eine Bank zur Verfügung stehen. Für Familien ist die Lage besonders vorteilhaft, da Schulen und Kindergärten sich in einem Umkreis von weniger als 2 Kilometern befinden. Die umgebende Landschaft lädt zu ausgedehnten Spaziergängen und Radtouren ein, wobei die Vils nur etwa 1,5 Kilometer entfernt fließt und Möglichkeiten zur Erholung und sportlichen Aktivität bietet. Ärzte und eine Zahnarztpraxis sind in der unmittelbaren Umgebung präsent, was kurze Wege im Alltag garantiert. Ein regionales Restaurant sowie ein Café im Ortskern bereichern das kulinarische Angebot. Die Anbindung an den öffentlichen Nahverkehr ist mit einer Bushaltestelle rund 500 Meter entfernt gewährleistet, wodurch die umliegenden Städte bequem zu erreichen sind. Die Autobahnanbindung A92 ist in etwa 10 Fahrminuten zu erreichen, was die Mobilität für Berufspendler optimiert.
Ausstattung
- Erdgas-Zentralheizung + 2 Holzöfen
- 3 Badezimmer mit Badewanne und Dusche
- Holzfenster 2-fach verglast
- Doppelgarage mit Grube
- Großer Garten mit Blumenbeeten, Obstbäumen
- Holzhütte für Geräte
- 2 Einbauküchen
- Rollos an allen Fenstern
- Speisekammer
- beheizbare Wohnräume im Kellergeschoss
- Garage unterkellert
- Echtholztreppe
- 3 Badezimmer mit Badewanne und Dusche
- Holzfenster 2-fach verglast
- Doppelgarage mit Grube
- Großer Garten mit Blumenbeeten, Obstbäumen
- Holzhütte für Geräte
- 2 Einbauküchen
- Rollos an allen Fenstern
- Speisekammer
- beheizbare Wohnräume im Kellergeschoss
- Garage unterkellert
- Echtholztreppe
Energie
| Energieausweistyp: | Verbrauchsausweis |
| Ausstellungsdatum: | 25. 02. 2024 |
| Gültig bis: | 2034-02-24 |
| Baujahr (laut Energieausweis): | 1993 |
| Energieeffizienzklasse: | D |
| Energieverbrauchkennwert: | 110 kWh/(m²*a) |
| Heizungsart: | Ofen |
| Wesentlicher Energieträger: | Gas |
| Energieträger/Befeuerung: | Gas, Kohle |
Sonstige Informationen
Wir freuen uns sehr, Ihnen dieses sehr geräumige Einfamilienhaus anbieten zu können.
Die Vermittlungsprovision beträgt 2,38 % inklusive MwSt.
Gerne vereinbaren wir einen Besichtigungstermin mit Ihnen.
Bitte verwenden Sie vorab unsere 360 Grad und auch Video Begehung!
Weitere Informationen erhalten Sie bei der Besichtigung.
Wichtiger Hinweis: Bitte haben Sie Verständnis dafür, dass nur Anfragen mit Adresse und korrekter Telefonnummer bearbeitet werden können.
Sollten Sie noch keinen Kapitalnachweis oder eine Finanzierungsbestätigung haben, stehen wir Ihnen mit unseren Kooperationspartnern für Immobilienfinanzierungen gerne hilfreich zur Seite!
"Ein Herz für Ihr Objekt"
Die Vermittlungsprovision beträgt 2,38 % inklusive MwSt.
Gerne vereinbaren wir einen Besichtigungstermin mit Ihnen.
Bitte verwenden Sie vorab unsere 360 Grad und auch Video Begehung!
Weitere Informationen erhalten Sie bei der Besichtigung.
Wichtiger Hinweis: Bitte haben Sie Verständnis dafür, dass nur Anfragen mit Adresse und korrekter Telefonnummer bearbeitet werden können.
Sollten Sie noch keinen Kapitalnachweis oder eine Finanzierungsbestätigung haben, stehen wir Ihnen mit unseren Kooperationspartnern für Immobilienfinanzierungen gerne hilfreich zur Seite!
"Ein Herz für Ihr Objekt"
Wohnfläche in m²179 m²
|
Zimmeranzahl6
|
KüchenEinbauküche
|
Bäder
3
(Ausstattung:
Dusche,
Wanne,
Fenster)
|
Balkon/Terasse
Balkone: 2
Terrassen: 1
|
Garage/Stellplätze4
|
Etagen2
|
KellerJA
|
Baujahr1993
|
Grundstücksgröße749 m²
|
Nebenkostenkeine Angabe
|
Verfügbar ab2025-08-01
|
Der Kaufpreis für das Objekt beträgt:
500.000 €
Maklerprovision:
Die Vermittlungsprovision beträgt 2,38 % inklusive MwSt
