*Bergblick!*Mehrfamilienhaus mit Fernwärme und Photovoltaik - 3 Wohneinheiten*
Krause Immobilien
Objektbilder





















Zum Vergrößern auf das Bild klicken
Objektstandort
83404 Ainring

Anbieter
Krause Immobilien
Gramanstraße 54B
84518 Wald a. d. Alz
Kontakt
Tel |
08634 9860677 Direkt anrufen |
Durchwahl |
+49 8634 9860677 Direkt anrufen |
Mobil |
+49 162 7815898 Direkt anrufen |
Fax | +49 32 221376975 |
Unser Immobilien-Angebot
Dieses fantastische Anwesen (3-Familienhaus mit drei abgeschlossenen Wohnungen) befindet sich in einer sehr ruhigen Gegend in Ainring Nähe Salzburg, Freilassing. In dieser wirklich wunderbaren Lage wurde ca. 1960 dieses Haus errichtet, der spätere Anbau und Umbau des Ladengeschäftes schaffte zusätzlichen Wohnraum, sowie eine Werkstatt und zwei Einzelgaragen. Das gesamte Anwesen erstreckt sich auf eine Grundfläche von 653 m². Dieses Haus eignet sich Dank der Aufteilung auch als Mehrgenerationenhaus.
Im Erdgeschoß wurden insgesamt zwei Wohnungen konzipiert und offerieren jeweils ein geräumiges Quartier für eine Familie. Eine Wohnungen verfügt über einen extra Eingang von außen, die andere Wohnung ist durch den offiziellen Hauseingang, wodurch auch die 3. Wohnung über einen Treppenaufgang zugänglich ist, begehbar. Lichtdurchflutet mit vielen Fensterelementen sorgt die transparente Raumgestaltung für eine wohltuend helle und freundliche Wohnatmosphäre.
Die umfassende Modernisierung erfolgte über die Jahre mit einem Fernwärmeanschluss, Photovoltaikanlage, neuen Fenstern und neuen Türen, moderne Fliesen und neuen Badezimmern.
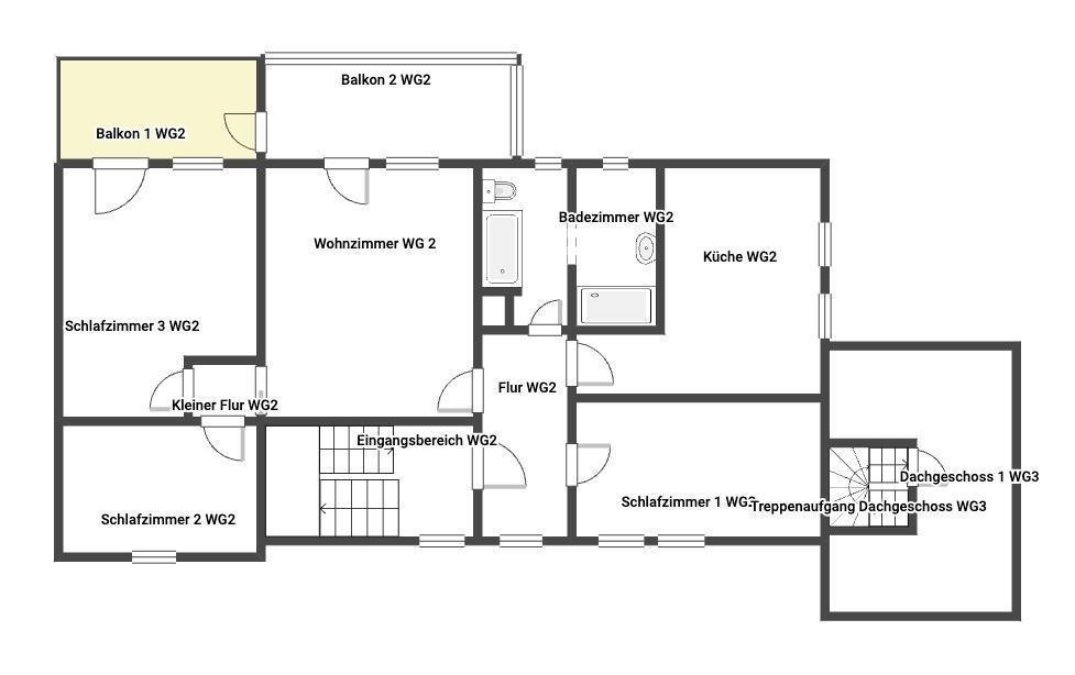
Das hier angebotene, sehr geräumige, 3-Familienhaus mit Balkon und 2 Terrassen verfügt über insgesamt 10 Zimmer. Auf der ersten Etage dieses einmaligen Hauses befinden sich mit einer Gesamtwohnfläche von ca. 85 m² Wohnung Nummer 1 (vermietet) mit Wohnzimmer mit Kaminofenanschluss, einer Küche, 3 Schlafzimmern, das Badezimmer, ein Gäste WC und Terrasse. Über das Treppenhaus gelangt man in die Wohnung Nummer 2 (vermietet) mit einer Gesamtwohnfläche von ca. 100 m², mit Wohnzimmer (Zugang zum Balkon/Wintergarten), einer großen Küche, 3 Schlafzimmern, das Badezimmer und Balkon mit Bergblick. Von außen auf der ersten Etage befindlich gelangt man zur Wohnung Nummer 3 (vermietet) mit ca. 45 m² Gesamtwohnfläche, mit Wohnzimmer, Küche, 1 Schlafzimmer und Badezimmer, Treppen-Abgang zu 2 Kellerräumen. Ebenso zum Anwesen gehören Abstellräume und ein Stellplätze im Innenhof, sowie vor dem Haus.
Im Erdgeschoß wurden insgesamt zwei Wohnungen konzipiert und offerieren jeweils ein geräumiges Quartier für eine Familie. Eine Wohnungen verfügt über einen extra Eingang von außen, die andere Wohnung ist durch den offiziellen Hauseingang, wodurch auch die 3. Wohnung über einen Treppenaufgang zugänglich ist, begehbar. Lichtdurchflutet mit vielen Fensterelementen sorgt die transparente Raumgestaltung für eine wohltuend helle und freundliche Wohnatmosphäre.
Die umfassende Modernisierung erfolgte über die Jahre mit einem Fernwärmeanschluss, Photovoltaikanlage, neuen Fenstern und neuen Türen, moderne Fliesen und neuen Badezimmern.
Das hier angebotene, sehr geräumige, 3-Familienhaus mit Balkon und 2 Terrassen verfügt über insgesamt 10 Zimmer. Auf der ersten Etage dieses einmaligen Hauses befinden sich mit einer Gesamtwohnfläche von ca. 85 m² Wohnung Nummer 1 (vermietet) mit Wohnzimmer mit Kaminofenanschluss, einer Küche, 3 Schlafzimmern, das Badezimmer, ein Gäste WC und Terrasse. Über das Treppenhaus gelangt man in die Wohnung Nummer 2 (vermietet) mit einer Gesamtwohnfläche von ca. 100 m², mit Wohnzimmer (Zugang zum Balkon/Wintergarten), einer großen Küche, 3 Schlafzimmern, das Badezimmer und Balkon mit Bergblick. Von außen auf der ersten Etage befindlich gelangt man zur Wohnung Nummer 3 (vermietet) mit ca. 45 m² Gesamtwohnfläche, mit Wohnzimmer, Küche, 1 Schlafzimmer und Badezimmer, Treppen-Abgang zu 2 Kellerräumen. Ebenso zum Anwesen gehören Abstellräume und ein Stellplätze im Innenhof, sowie vor dem Haus.
Lage des Objektes
Ainring liegt im oberbayerischen Landkreis Berchtesgadener Land und gehört zur Metropolregion München. Die Gemeinde zeichnet sich durch ihre naturnahe Lage aus, umgeben von malerischen Landschaften und einem herrlichen Alpenpanorama. Ainring bietet eine ausgezeichnete Infrastruktur, ein familienfreundliches Umfeld und eine gute Erreichbarkeit der nahegelegenen Städte Freilassing, Salzburg und Berchtesgaden.
Die Immobilie befindet sich in einem ruhigen und gepflegten Wohngebiet in Ainring. Einkaufsmöglichkeiten für den täglichen Bedarf wie ein Supermarkt sind nur rund 600 Meter entfernt und in wenigen Minuten bequem zu Fuß erreichbar. Eine Grundschule befindet sich in ca. 1,4 Kilometern Entfernung, während ein Kindergarten etwa 1,6 Kilometer entfernt liegt, was die Lage ideal für Familien macht. Die nächstgelegene Bushaltestelle ist weniger als 500 Meter entfernt und bietet eine gute Anbindung an das öffentliche Verkehrsnetz. Für Pendler liegt der Bahnhof Ainring nur etwa 2,5 Kilometer entfernt, von dem aus unter anderem Salzburg in kurzer Zeit erreichbar ist.
Freizeitmöglichkeiten wie das Naherholungsgebiet Ainringer Moor befinden sich in einem Umkreis von ca. 3 Kilometern und laden zu ausgedehnten Spaziergängen und Naturerlebnissen ein. Zudem sind Sporteinrichtungen wie ein Tennisplatz und ein Schwimmbad innerhalb einer Entfernung von 2 Kilometern verfügbar. Die Nähe zur österreichischen Stadt Salzburg (ca. 10 Kilometer) erweitert das Kultur- und Freizeitangebot zusätzlich.
Die Immobilie befindet sich in einem ruhigen und gepflegten Wohngebiet in Ainring. Einkaufsmöglichkeiten für den täglichen Bedarf wie ein Supermarkt sind nur rund 600 Meter entfernt und in wenigen Minuten bequem zu Fuß erreichbar. Eine Grundschule befindet sich in ca. 1,4 Kilometern Entfernung, während ein Kindergarten etwa 1,6 Kilometer entfernt liegt, was die Lage ideal für Familien macht. Die nächstgelegene Bushaltestelle ist weniger als 500 Meter entfernt und bietet eine gute Anbindung an das öffentliche Verkehrsnetz. Für Pendler liegt der Bahnhof Ainring nur etwa 2,5 Kilometer entfernt, von dem aus unter anderem Salzburg in kurzer Zeit erreichbar ist.
Freizeitmöglichkeiten wie das Naherholungsgebiet Ainringer Moor befinden sich in einem Umkreis von ca. 3 Kilometern und laden zu ausgedehnten Spaziergängen und Naturerlebnissen ein. Zudem sind Sporteinrichtungen wie ein Tennisplatz und ein Schwimmbad innerhalb einer Entfernung von 2 Kilometern verfügbar. Die Nähe zur österreichischen Stadt Salzburg (ca. 10 Kilometer) erweitert das Kultur- und Freizeitangebot zusätzlich.
Ausstattung
Eine sorgsam zusammengestellte Auswahl an Ausstattungsdetails bietet den passenden Rahmen für dieses repräsentative Anwesen:
- Wohnung Nummer 1 (derzeit vermietet) im Erdgeschoss mit Badezimmer, Gäste WC, 3 Schlafzimmern, Küche und Wohnzimmer, sowie Terrasse und überdachter Freisitz
- Wohnung Nummer 2 (frei beziehbar) im Obergeschoss mit Badezimmer, 3 Schlafzimmern, Küche, Wohnzimmer, Wintergarten und Balkon
- Wohnung Nummer 3 (derzeit vermietet) mit separatem Eingang, Wohnzimmer, Schlafzimmer, Küche, extra Zimmer im Obergeschoss und 2 Kellerräume, sowie Terrasse und Gartenanteil
- 2-fach isolierverglaste Kunststofffenster
- Fernwärme
- Zentralheizkörper
- geräumige Werkstatt und 2 Garagen 1x mit Elektrotor
- Überwiegend Fliesen , Laminat und Parkett
- separate Abstellräume
- freie Stellplätze im Innenhof und vor dem Haus
- 3 Badezimmer
- sehr geräumiger Keller
- 5kw Photovoltaik
- Einfahrt geteert
- Wohnung Nummer 1 (derzeit vermietet) im Erdgeschoss mit Badezimmer, Gäste WC, 3 Schlafzimmern, Küche und Wohnzimmer, sowie Terrasse und überdachter Freisitz
- Wohnung Nummer 2 (frei beziehbar) im Obergeschoss mit Badezimmer, 3 Schlafzimmern, Küche, Wohnzimmer, Wintergarten und Balkon
- Wohnung Nummer 3 (derzeit vermietet) mit separatem Eingang, Wohnzimmer, Schlafzimmer, Küche, extra Zimmer im Obergeschoss und 2 Kellerräume, sowie Terrasse und Gartenanteil
- 2-fach isolierverglaste Kunststofffenster
- Fernwärme
- Zentralheizkörper
- geräumige Werkstatt und 2 Garagen 1x mit Elektrotor
- Überwiegend Fliesen , Laminat und Parkett
- separate Abstellräume
- freie Stellplätze im Innenhof und vor dem Haus
- 3 Badezimmer
- sehr geräumiger Keller
- 5kw Photovoltaik
- Einfahrt geteert
Energie
Energieausweistyp: | Verbrauchsausweis |
Ausstellungsdatum: | 29. 10. 2021 |
Gültig bis: | 2031-10-28 |
Baujahr (laut Energieausweis): | 1960 |
Energieeffizienzklasse: | E |
Energieverbrauchkennwert: | 158.5 kWh/(m²*a) |
Heizungsart: | Fernwärme |
Wesentlicher Energieträger: | Fernwärme |
Energieträger/Befeuerung: | Kohle |
Sonstige Informationen
Wir freuen uns sehr, Ihnen dieses Mehrfamilienhaus, welches sich auch hervorragend als Mehrgenerationenhaus eignet anbieten zu können.
Die Vermittlungsprovision beträgt 3,57 % inklusive MwSt.
Gerne vereinbaren wir einen Besichtigungstermin mit Ihnen.
Es liegt eine durch Sachverständigen erstellte Verkehrswertermittlung vor!
Weitere Informationen erhalten Sie bei der Besichtigung, bzw. auf Anfrage.
Wichtiger Hinweis: Bitte haben Sie Verständnis dafür, dass nur Anfragen mit Adresse und korrekter Telefonnummer bearbeitet werden können.
Sollten Sie noch keinen Kapitalnachweis oder eine Finanzierungsbestätigung haben, stehen wir Ihnen mit unseren Kooperationspartnern für Immobilienfinanzierungen gerne hilfreich zur Seite!
"Ein Herz für Ihr Objekt"
Die Vermittlungsprovision beträgt 3,57 % inklusive MwSt.
Gerne vereinbaren wir einen Besichtigungstermin mit Ihnen.
Es liegt eine durch Sachverständigen erstellte Verkehrswertermittlung vor!
Weitere Informationen erhalten Sie bei der Besichtigung, bzw. auf Anfrage.
Wichtiger Hinweis: Bitte haben Sie Verständnis dafür, dass nur Anfragen mit Adresse und korrekter Telefonnummer bearbeitet werden können.
Sollten Sie noch keinen Kapitalnachweis oder eine Finanzierungsbestätigung haben, stehen wir Ihnen mit unseren Kooperationspartnern für Immobilienfinanzierungen gerne hilfreich zur Seite!
"Ein Herz für Ihr Objekt"
Wohnfläche in m²230 m²
|
Zimmeranzahl10
|
Küchenkeine Angabe
|
Bäder
3
(Ausstattung:
Dusche,
Wanne,
Fenster)
|
Balkon/Terasse
Balkone: 1
Terrassen: 2
|
Garage/Stellplätze2
|
Etagen2
|
KellerJA
|
Baujahr1960
|
Grundstücksgröße653 m²
|
Nebenkostenkeine Angabe
|
Verfügbar ab2025-10-01
|
Der Kaufpreis für das Objekt beträgt:
620.000 €
Maklerprovision:
Die Vermittlungsprovision beträgt 3,57% inklusive MwSt